
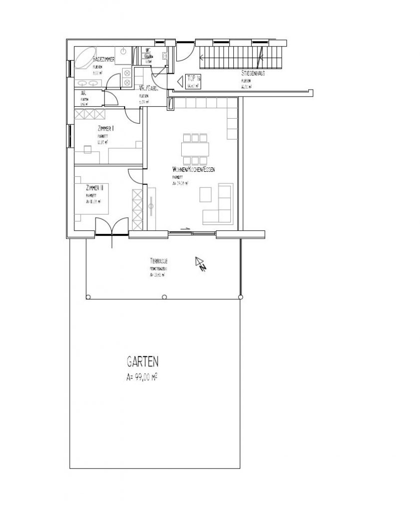
Top 1/a
weiter lesen
Top 1/b
weiter lesen
Top 2/a
weiter lesen
Top 2/b
weiter lesen
Top 3
weiter lesen
Top 3
weiter lesen
Top 4
weiter lesen
Top 4
weiter lesen
Top 5
weiter lesen
Top 5
weiter lesen
Echtholzböden, hochwertige Innentüren mit Holzzarge, Fußbodenheizung (Penthouse Kühl und Heizdecke), Kunststoff/Alu Fenster von Internorm mit Ug-Wert von 0,68 W/m2K, Sonnenschutz mit Raffstore, (Motorbetrieben) und Somfysteuerung, dezentrale Wohnraumlüftung mit Wärmerückgewinnung, zusätzliche Steckdosen und Lichtschalter (Penthouse mit BUS Steuerung), Bäder und WC mit hochwertiger sanitärer Ausstattung und einer großen Auswahl an keramischen Belegen, Tiefgarage verbindet beide Häuser, der Zugang erfolgt über Lift oder Stiegenhaus, jede Wohnung verfügt ein Kellerabteil mit Fenster, Internet Anbindung über zentrales WLan Netzwerk, Zentrale Sat Anlage Vorbereitung für Standtelefon, Türöffnung über Videosprechanlage, alle Türen (Haus-, Wohnungs- und Kellerabteiltür) und Briefkasten mit nur einem Schlüssel, ...